非凡·璞禵公馆工程部专访:解密清水样板间的匠心密码
扫描到手机,新闻随时看
扫一扫,用手机看文章
更加方便分享给朋友
从坦途平地,到轮廓清晰,一栋栋高楼拔地而起,美好,总是在时光中悄然酝酿,历经无数次打磨完善,于不动声色间展露雏形。

| 鸟瞰图
工程师作为美好的筑造者,既要有科学家的严谨态度,也要有与时俱进的技术,才能将一砖一瓦建造成有保障的好房子。
【璞禵筑梦人】排名前列期,以匠心之名,邀您一起走进非凡·璞禵公馆工程部经理张军翼——倾听他的故事,探寻非凡·璞禵公馆清水样板间背后承载的信念。
作为经常在奔走在工程一线的非凡人,作为最懂非凡·璞禵公馆品质的建设者,他们是当之无愧的含金量担当。
非凡置业背后的实力与匠心
►“严控施工质量 建设品质工程。”
伴随“濮阳向北”的发展方向,当濮北新区还作为一个新兴板块存在的时候,非凡置业便以前瞻性的布局率先来到这片土壤。

| 濮北新区实景图
张军翼经理说到:“深耕地产、扎根濮阳一直是我们非凡置业开发的核心战略,2014年,在濮北这块优越之地,倾力打造濮阳高品质住宅小区——非凡·汇龙湾。目前更是三盘齐发,非凡·百花湖作为倾力打造的院子系列产品,占地约5800亩,而我们非凡·璞禵公馆更是濮北新区的热销红盘,公司对本项目非常关注,是非凡未来在濮阳的品质标杆,给濮阳带来真正的中式高端精品。”

| 非凡·璞禵公馆效果图
从高层到洋房,再到别墅,每一个项目的运作都不断提升着城市人居的品质高度,以及非凡置业自己的品牌实力。

| 非凡·汇龙湾鸟瞰图

| 非凡·百花湖实景图
“非凡置业一步一个脚印,稳健提升产品质量。在后疫情时代,人们对于品质人居的需求更为迫切,为给濮阳敬献更高端人居,公司领导及项目领导几经商议、研磨,决定不惜重金进行‘景观示范区·车位示范区·清水样板间 重磅升级’,目前所看到的清水样板间便是我们实践的排名前列步,今年(2021年)景观示范区、车位示范区升级将会挨个落地,我们工程部将会严控施工质量,建设品质工程,建设濮阳人居标杆。”张军翼经理面对采访信心满满、掷地有声。

| 清水样板间实景图
产品质量是企业的立足之本
►“清水样板间开放不是形式,而是莫大的底气与自信!”
细节决定成败,一个建筑的品质感,往往体现在一些细节上。一块瑞士名表,机芯内所有零件,包括添加的机械装置,其工艺必须达到12法则的严格要求,并接受抽样检验。

| 非凡·璞禵公馆实景图
张军翼经理讲到,在决定品质升级后,工程部根据要求编写工程策划方案,从技术管理、进度管理、质量管理、成本管理、安全管理等各个方面进行分析,每一点都是经过数十次打磨、上会、定稿。
BODHI MANSION



清水样板间实景图
工程部对施工现场堪称魔鬼级把控。“对细节的把控,我们要做到魔鬼化要求。因此我们会做清水样板间开放,让客户现场近距离感受我们的品质。”

| 清水样板间实景图
“但真正进行清水样板间开放的开发商并不多,因为清水样板间对工程质量与管理提出了很高的要求,需要足够的自信。”张军翼经理说到,“让非凡置业成长为负责任、受人尊敬的高品质品牌房企,也是我们较大的幸福。”

非凡·璞禵公馆为爱筑家,将关怀精确到毫厘,以精工品质和热忱初心,匠筑舒适人居,必不辜负每一份业主的信任与期待。非凡·璞禵公馆醉美清水样板间,恭迎品鉴!
售楼部地址
濮阳市历山路与卫都大道交汇处
项目地址
濮上路与高阳大街交会处
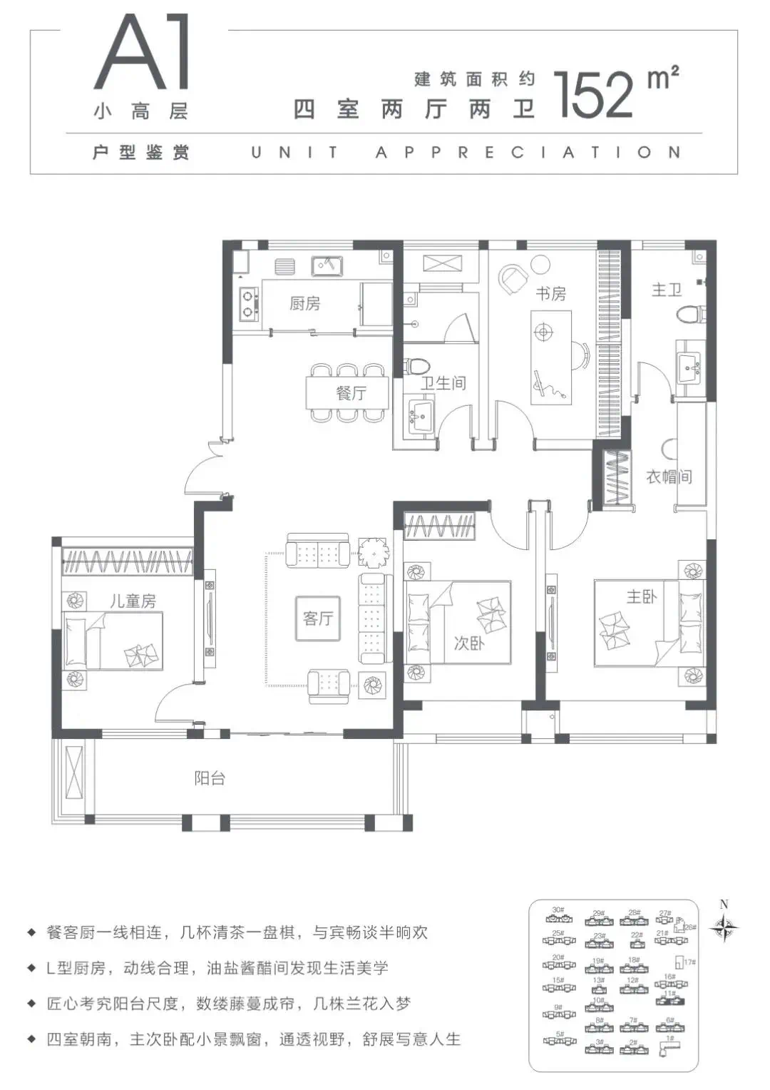
臻藏户型,分秒递减


公司成立于2009年,始终贯彻“深耕地产,扎根濮阳”的发展战略,专注地产开发,连续多年获得濮阳市“房地产优秀开发企业”荣誉称号,2016年获得河南省“房地产优秀开发企业”荣誉称号。
声明:本文由入驻焦点开放平台的作者撰写,除焦点官方账号外,观点仅代表作者本人,不代表焦点立场。


