【建业龙城】 | 112㎡爆款三室,承载全家的理想生活
扫描到手机,新闻随时看
扫一扫,用手机看文章
更加方便分享给朋友

在房价持续上涨,生活成本与日俱增的今天,究竟什么样的房子,才能够兼顾生活和品质,既能以超高性价比满足安居城市、生活品质提升的梦想,又能够满足一家三代同堂相聚的幸福呢?
建业龙城112㎡爆款三室,5大关键词,重新定义生活格局,圆满龙城有成人士的幸福理想。

✿ 网络图

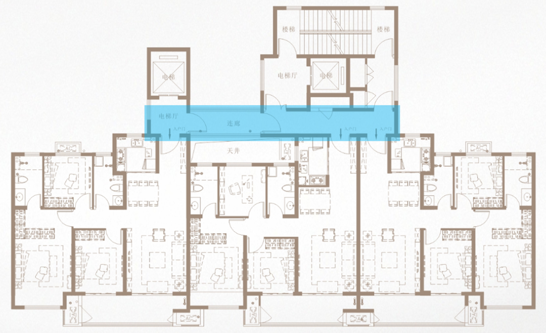
✿ 利用楼栋空间搭设连廊和天井,让户型之间无遮挡,使空气南北对流,提升采光面与通风性,让中间户也拥有南北通透的生活体验,让室内空气时刻自然。
✿厨房、卫生间享专属窗户,空间敞亮,轻松排除室内浊气,家倍清新。

✿ 户型示意

✿约5.6米大面宽阳台,相连客厅,沙发之上就能享受IMAX级美景体验。更增加了客厅的采光面积和空气流通,保证室内空气时刻清新。
✿约1.8米进深大阳台,集洗、晾、晒等多功能于一体,可轻松摆放茶几、桌椅等家具,品茗、闲话、观景……更多幸福生活体验。
✿ 紧邻超大中央花园、享较大超100米奢阔楼间距,阳光无遮挡直达,园林盛景推窗可见,美好就等你来。

✿ 户型示意

✿ 样板间实景图

✿将客厅空间优质扩大,成就约3.6米面宽舒适大客厅,不只满足全家人饭后休闲的需求,也留下充足空间让孩子自由奔跑、释放天性。
✿阳台、客厅、餐厅一线贯通,既减少了室内通道造成的空间浪费,也优质拓展室内的空间感受,每天忙碌之后,打开家门是无限敞亮的空间,心情无限开阔。

✿ 户型示意

✿ 样板间实景图

✿厨房和卧室保持距离,美好生活的每一天,妈妈享受为家人准备早餐带来快乐的同时,还不打扰家人和孩子们的早觉!
✿厨房享专属明窗,烹饪时打开窗户,既能享受明媚阳光和清风鸟鸣,还能快速散去烹饪油烟。
✿人性化L型布局,洗菜、切菜、煮粥、做菜……转身之间,妈妈已经用魔法为全家做出幸福的味道,优质便捷。

✿ 户型示意

✿ 样板间实景图

✿懂得女主人的爱美需求,设置衣帽间,将女主人的时尚悉心珍藏,井井有条。
✿考究您和爱人的私密需求,配备独立卫生间,体贴倍添。
✿主卧专属飘窗,面积全赠送,大大提升居住的舒适性,并延伸室内的空间,为生活增加更多可能,赏景、静坐、读书、品茗,享受阳光带来的质感生活。

✿ 户型示意

✿ 样板间实景图
繁华城央,书礼传家建筑面积约112-135㎡爆款房源火热销售中

•本宣传资料为邀约邀请,不作为要约或承诺;•相关内容不排除因政府相关规划、规定及开发商未能控制的原因而发生变化,建业保留对宣传资料修改的权利,本资料所发布的内容为2020年8月24日前的信息,敬请留意较新资料;•本资料对项目或产品的介绍,旨在提供相关信息,不意味着本公司对此作出了承诺,买卖双方的权利义务以双方签订的《商品房买卖合同》及附件等协议为准;• 在法律允许的范围内,本资料修改权归出卖人所有;• 开发商:濮阳建业住宅建设有限公司。预售证号:濮县房预售字第2020119号。
声明:本文由入驻焦点开放平台的作者撰写,除焦点官方账号外,观点仅代表作者本人,不代表焦点立场。


